Prodej RD 4+1, Bednáreček, Jindřichův Hradec (Prodáno)
Bednáreček

Popis

Čekáte na akorátní dům? Ani malý ani velký, zahrada bez lánů, ale víc než jen na grilovací posezení? Dostatek pokojů a místa pro celou rodinu a přitom žádný palác na zdlouhavé uklízení? Úžasná atmosféra místa, příjemné soukromí a přitom žádná samota v horách?
V tom případě tento dům prostě chceš :-)
Pokud jste si alespoň 1x odpověděli ano, neváhejte mě kontaktovat pro další informace, či zamluvení Vašeho času na prohlídkovém dni. Těším se na osobní setkání s Vámi.
Číslo nabídky
N87
Adresa
Bednáreček
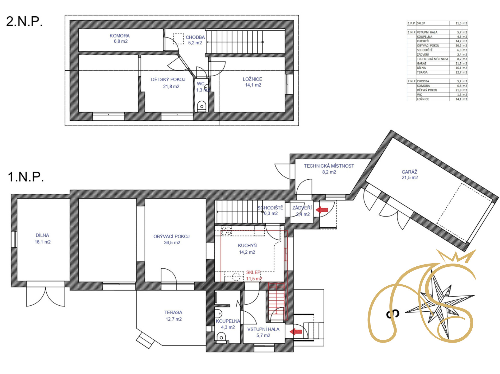
Dispozice domu
4+1
Poloha objektu
Samostatný
Druh stavby
Cihlová
Zastavěná plocha
225 m2
Celková plocha
127 m2
Užitná plocha
189 m2
Stav objektu
Velmi dobrý
Plocha pozemku/ů
766 m2
Typ domu
Patrový
Počet podlaží
2
Rok rekonstrukce
2022
Rok výstavby
1968
Umístění objektu
Klidná část obce
Komunikace
Asfaltová
PENB: Náročnost budovy
D - Méně úsporná
Andrea Šteflová
Andrea Šteflová
Domluvit prohlídku
zobrazit velkou mapu